コンフォリア戸越公園 2階

物件概要
賃料 成約済 管理費/共益費 成約済
敷金 成約済 礼金 成約済
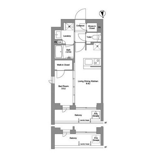
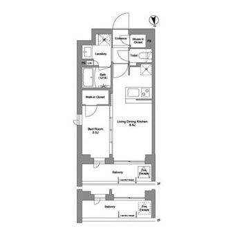
間取り 1LDK 面積 32.34㎡
部屋詳細 洋室(3.5帖) LDK(8.6帖) 所在階 2階
向き 竣工月 2025年7月
PHOTO GALLERY
間取り画像
外観1

外観1

エントランス

エントランス

メールボックス

メールボックス

宅配ボックス

宅配ボックス

間取り

間取り

外観1 エントランス メールボックス 宅配ボックス 間取り

1 / 1

物件概要・設備
物件名 コンフォリア戸越公園 物件管理番号 12904042
物件所在地 東京都 品川区 豊町 1丁目 8ー3 MAP
交通機関
物件特徴 仲介手数料無料 礼金0 ペット相談可
総戸数 44戸
階数 地上4階 建築構造 RC
間取り 1LDK 竣工 2025年7月
所在階 2階 面積 32.34㎡
賃料 成約済 向き
敷金 成約済 管理費/共益費 成約済
仲介料 成約済 礼金 成約済
現況 在室 フリーレント -
積増し敷金 ペット飼育時: 1ヶ月
保証会社 必加入 (株)エポスカード

【初回契約時】 50% (非課税) 【月額】 1% (非課税)

損害保険 有  料金:16,550円  損保年数:2年  損害保険
その他費用
  • ハウスクリーニング費用:35,200円 (税込み)
  • エアコン分解清掃費用:22,000円 (税込み)
契約種別 普通契約 契約期間(期限) 2年
入居時期 即日 入居条件 1年以内の解約時賃料1ヶ月分違約金あり
設備 ガス:都市ガス, インターホン:TVモニター付き, ディンプルキー, ダブルロック, オートロック, 2面採光, 角部屋, フローリング, 照明器具, バルコニー, 収納スペース, ウォークインクローゼット, 下駄箱, バス・トイレ:別室, シャワー, 追い焚き, 浴室乾燥機, 脱衣所, 給湯, 温水洗浄便座, 洗面台, 洗面所独立, 洗濯機置場:室内, ガスコンロ設置済, ガスコンロ口数(2), コンロ種類:都市ガス, システムキッチン, カウンターキッチン, 対面キッチン, エアコン, BS, CS, インターネット無料
周辺施設
  • コンビニ: ローソン西品川三ツ木通店 距離476m
  • コンビニ: ファミリーマート戸越銀座東店 距離371m
  • スーパー: まいばすけっと戸越4丁目店 距離483m
  • スーパー: スーパー文化堂戸越銀座店 距離468m
  • ドラッグストア: サンドラッグ戸越銀座店 距離366m
  • ドラッグストア: ドラッグセイムス戸越銀座1丁目店 距離371m
  • ショッピングセンター: ゲートシティ大崎 距離1378m
  • 公園: 文庫の森 距離375m
情報更新日 2025年11月10日 取引形態 媒介
備考 楽器演奏・SOHO利用不可。ペット相談可能(敷金1ヶ月積増※小型犬1匹又は猫1匹迄)。退居時エアコン清掃費・室内清掃費がかります。留学生本人契約可能(GTN利用必須)。インターネット使用料不要 : ファイバーゲート限定

※敷金・礼金・フリーレントなど各種キャンペーンにつきましては、予告なく終了したり変更する場合がございますので予めご了承ください。また、キャンペーンはお部屋ごとに異なる場合がございます。

※駐輪場・バイク置き場・駐車場等の空き状況に関しましては、お問い合わせください。

※分譲賃貸マンションの場合、お部屋ごとに所有者が異なります。それに伴い貸主様によって賃料・管理費等の条件など契約に関する設定が異なります。また、お部屋によっては、設備や仕様、内装などが変更されている場合もございます。

※建物によっては、フロアー別やお部屋別でペットの飼育やSOHO利用を認めている場合がございます。また、建物自体が許可を出していても、貸主様の希望により不可の場合もございますので事前にご確認ください。

詳細は弊社スタッフまでお気軽にお尋ねください。

MAP
最近見た物件

閲覧履歴がありません。